• 24/7 Bereikbaar
  • Meer dan 10 jaar ervaring
  • Gecertificeerde vakmannen
  • Actief in Limburg en omstreken

Keuken

Een prachtige keuken begint bij een veilige en slimme stroomvoorziening

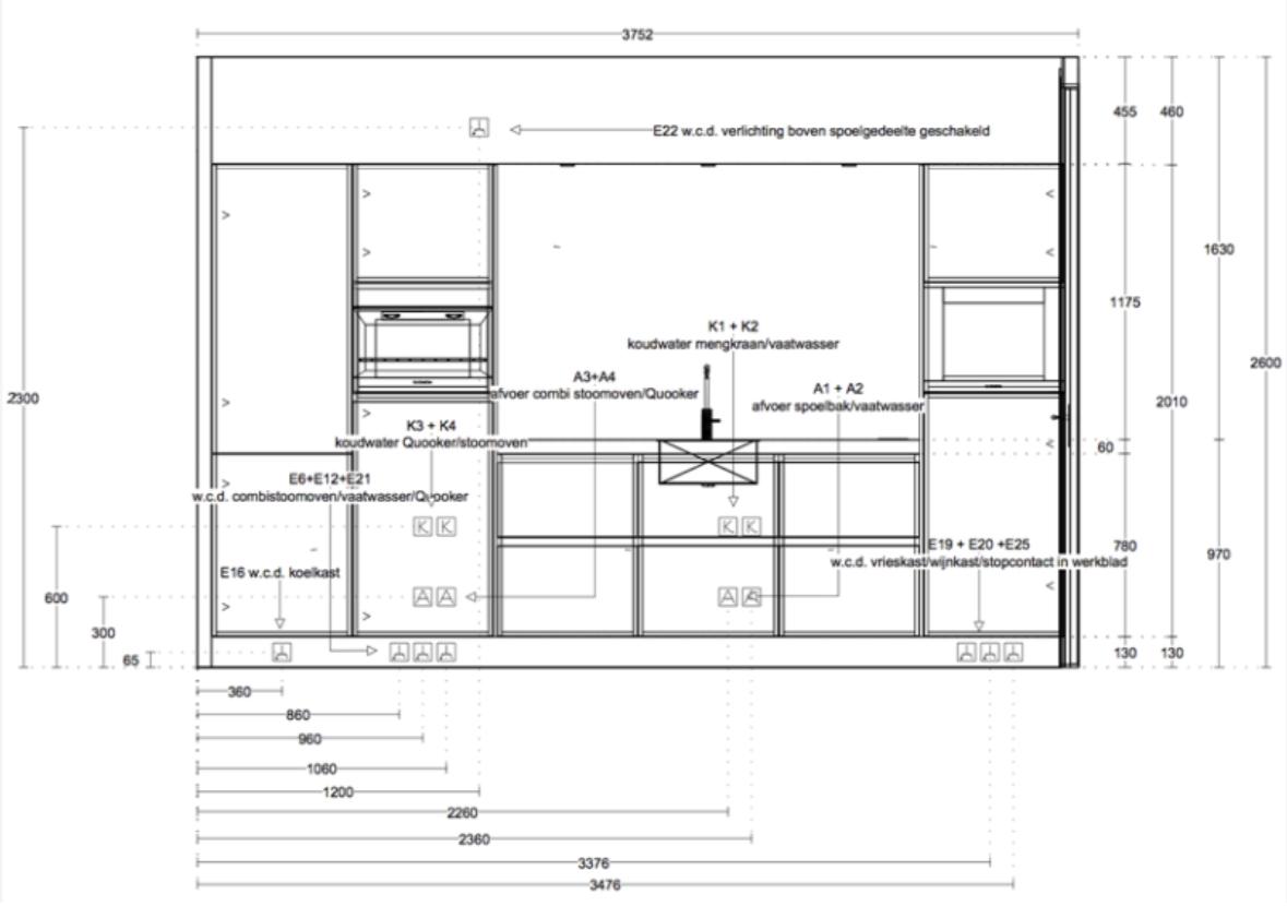
Een nieuwe keuken is een flinke investering. Je kiest zorgvuldig je apparatuur, werkblad en indeling – maar één cruciaal onderdeel wordt vaak overgeslagen: de elektrische installatie.

Bij Jazz Electro zien we het regelmatig: een schitterende keuken die niet goed werkt door onvoldoende of verouderde stroomaansluitingen. Zonde – én risicovol.

Design keuken Jazz-Electro
keuken apparatuur - Jazz Electro

Waarom is aangepaste elektra in de keuken zo belangrijk?

Moderne keukens bevatten steeds meer krachtige apparaten, zoals:

  • Inductiekookplaten
  • Combi-ovens of stoomovens
  • Quookers
  • Koffiemachines
  • Vaatwassers
  • Koelkasten en vriezers

Deze apparaten vragen om een slimme verdeling van de stroom – vaak met extra groepen of zelfs een aparte kookgroep (2-fase) of krachtgroep (3-fase).

Wat kan er misgaan zonder goede elektra?

  • Apparaten werken niet of vallen uit

  • Stoppen slaan regelmatig door

  • Overbelasting van de groepenkast

  • Risico op storingen of zelfs brand

  • Apparaatprestaties die tegenvallen

Jazz Electro regelt het professioneel en veilig

Wij zorgen voor een toekomstbestendige elektrische installatie, helemaal afgestemd op jouw keukenplan.
Van het aanpassen van je groepenkast tot het plaatsen van extra wandcontactdozen – wij zorgen dat alles klopt.

Onze aanpak:

  • Advies op basis van je keukenontwerp
  • Overleg met je keukenleverancier of installateur
  • Werken volgens NEN-normen
  • Strakke en nette installatie, klaar voor montage
Technische plan keuken -Jazz Electro

Nieuwe keuken? Laat eerst je stroom checken

Zo voorkom je verrassingen én weet je zeker dat jouw droomkeuken ook technisch perfect werkt.